++Entschleunigung im eigenen Garten.++
Hier wohnen Sie absolut ruhig und dennoch erreichen Sie alle Einkaufsmöglichkeiten, Kiga, Schulen und die Bahn innerhalb weniger Minuten.
Aufteilung:
EG
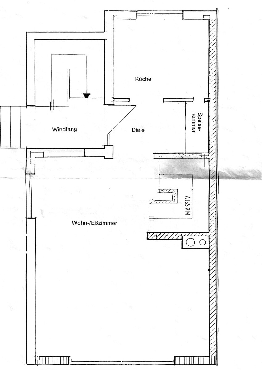
- Windfang mit Garderobe
- geräumige Diele
- großer Wohn-Essbereich mit Kamin und Parkett
- großzügige Küche (EBK kann für 1€ übernommen werden)
- Speisekammer
- Sonnenterasse mit direktem Zugang in den privaten Garten
1. OG
- drei helle Schlafzimmer
- frisch saniertes Tageslichtbad mit Badewanne und separater Dusche
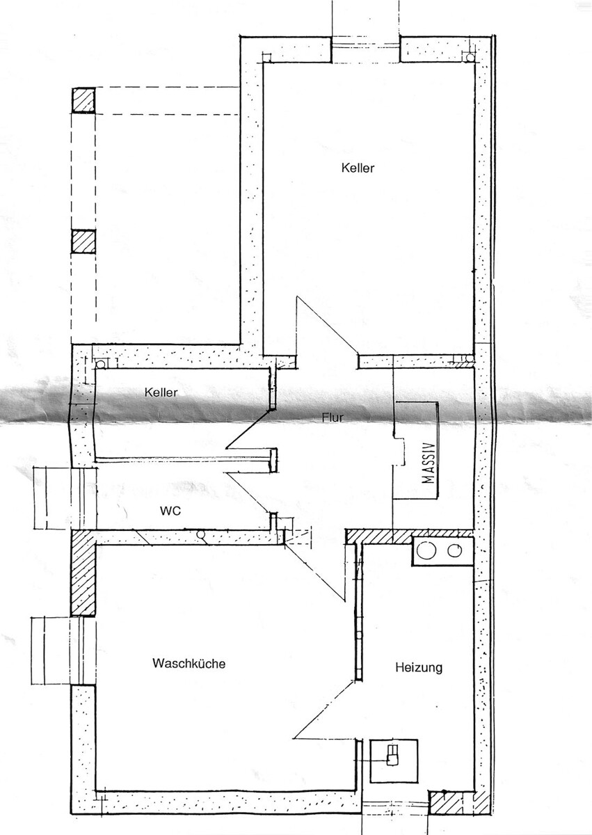
UG
- Gäste WC
- Waschküche / Vorrat
- Keller / Gast
- Vorratkeller
Die Einzimmerwohnung im Dachgeschoss ist separat vermietet.
(Über ein eigenes Treppenhaus erreichbar)
Für Ihre Fahrzeuge steht vor dem Haus ein Stellplatz bereit, der im Mietpreis inbegriffen ist.
Auf Wunsch kann bei Bedarf für 100 Euro im Monat zusätzlich eine Garage mit davorliegendem Stellplatz in unmittelbarer Nähe angemietet werden.
Dieses Haus hat viele Lieblingsplätze.
Im Sommer genießen Sie täglich den schönen Garten.
Wie wäre es mit einem Grillfest mit Freunden bei einem guten Glas Wein? Dem Lauf der Sonne folgend, stehen rund um das Haus unterschiedliche Freiräume zur Verfügung. Im Winter können Sie sich am Knistern des Kaminfeuers erfreuen.
AKTUELLER HINWEIS ZU BESICHTIGUNGEN:
Sehr geehrter Interessent,
wir nehmen die jetzige Situation zur Corona-Pandemie sehr ernst und möchten den Kontakt zwischen Interessenten und anderen Beteiligten auf das Allernötigste reduzieren. Um Ihnen jedoch auch weiterhin die Möglichkeit zu geben, sich einen Eindruck von den Immobilien zu machen, stehen wir gerne für weitere Informationen per Mail und am Telefon zur Verfügung. Individuelle Besichtigungen ohne Sozialkontakte können organisiert werden.
Wir hoffen auf Ihr Verständnis und freuen uns auf Ihre Kontaktaufnahme.
Preise
- Kaltmiete
- 1.500,00 €
- Nebenkosten
- 300,00 €
Kategorie
- Objektart
- Haus
- Objekttyp
- Doppelhaushälfte
- Nutzungsart
- Wohnen
- Vermarktungsart
- Miete
Geografische Angaben
- Ort
- Kelkheim
Flächen
- Wohnfläche
- 110 m²
- Nutzfläche
- 41 m²
- Gesamtfläche
- 151 m²
- Anzahl Zimmer
- 4
- Anzahl Schlafzimmer
- 3
- Anzahl Badezimmer
- 1
Ausstattung
Terrasse
- Stellplätze
- 1 Freiplatz
Technische Angaben
- externe Objnr
- 3294-DGM-2969
Beschreibung
Lage
Kennen Sie Kelkheim? Umgeben von Wäldern liegt am Südhang des Taunus die rd. 28.000 Einwohner zählende Stadt Kelkheim. Die zentrale Lage im Ballungsgebiet Rhein-Main mit direktem Autobahnanschluss an die Nord-Süd- und Ost-West-Autobahnen sowie nur 20-minütiger Fahrzeit zum größten internationalen Flughafen der Bundesrepublik Deutschland brachte es mit sich, dass Kelkheim bevorzugter Wohnort wurde. Die Nähe zur Stadt Frankfurt am Main ermöglicht gerade dem dort Erwerbstätigen das Wohnen in schöner und ruhiger Umgebung außerhalb der Großstadt und die Erholung vom Stress des Alltags. Alle Geschäfte für den kurz-, mittel- und langfristigen Bedarf sind vorhanden oder schnell erreichbar. Über die Grenzen bekannt ist das Einkaufsparadies Main-Taunus-Zentrum, welches Sie in nur wenigen Minuten erreichen.
Kindergärten, Schulen und Jugendräume stehen ausreichend zur Verfügung. Durch die landschaftlich reizvolle Umgebung kann man der Natur direkt begegnen; die Vielfalt der Kelkheimer Gastronomie bietet etwas für jeden Geschmack.
Ansonsten gibt es zwei weitere hochkarätige Attraktivitäten, und zwar den 18-Loch-Golfplatz Hof Hausen vor der Sonne in wunderschöner Naturlage und Blick nach Frankfurt sowie die beliebte Rhein-Main-Therme mit großem Sauna-Fitness-Bereich, zwei Riesenrutschen, Gastronomie, Wellenbad und vielem mehr.
Kelkheim ist eine lebendige Stadt, in der man sich wohlfühlt und gerne wohnt. Mehr Informationen über Kelkheim finden Sie im Internet unter www.kelkheim.de.
Kindergärten, Schulen und Jugendräume stehen ausreichend zur Verfügung. Durch die landschaftlich reizvolle Umgebung kann man der Natur direkt begegnen; die Vielfalt der Kelkheimer Gastronomie bietet etwas für jeden Geschmack.
Ansonsten gibt es zwei weitere hochkarätige Attraktivitäten, und zwar den 18-Loch-Golfplatz Hof Hausen vor der Sonne in wunderschöner Naturlage und Blick nach Frankfurt sowie die beliebte Rhein-Main-Therme mit großem Sauna-Fitness-Bereich, zwei Riesenrutschen, Gastronomie, Wellenbad und vielem mehr.
Kelkheim ist eine lebendige Stadt, in der man sich wohlfühlt und gerne wohnt. Mehr Informationen über Kelkheim finden Sie im Internet unter www.kelkheim.de.
Sonstige Angaben
Eigentümer: Sie möchten verkaufen bzw vermieten?
Gerne erstellen wir Ihnen kostenlos und unverbindlich eine Wertschätzung Ihrer Immobilie.
Finanzierung:
Wir bieten Ihnen erstklassige Konditionen, kombiniert mit maximaler Flexibilität. Hypothekendarlehen mit einer Zinsfestschreibung von 5 bis 15 Jahren. Sondertilgungsmöglichkeiten von 5 bis 10 % jährlich.
Grundlage unserer Zusammenarbeit:
Für Gespräche, Verhandlungen, Besichtigungen, die Zusendung von Exposés entstehen Ihnen keine Kosten.
Die Nachweis- bzw. Vermittlungsprovision in Höhe von 5,95 % inkl. gesetzl. Mehrwertsteuer wird bei Kaufvertragsabschluss fällig und ist vom Käufer zu zahlen.
Sollten Sie die Verkäuflichkeit des Angebotes bzw. den Verkäufer sowie dessen Verkaufsabsicht kennen, können Sie sich auf diese Vorkenntnis gegenüber Haus-t-raum nur dann berufen, wenn Sie hierauf unverzüglich schriftlich hinweisen.
Die Weitergabe von Angebotsinformationen, die ausschließlich vom Verkäufer stammen und für deren inhaltliche Richtigkeit wir nicht haften, ist vertragswidrig und führt zum Schadenersatz. Zwischenverkauf ist nicht ausgeschlossen. Grundrisse, Fotos und Modelle dienen ausschließlich der Objektdarstellung ohne Gewähr für Zustand und Beschaffenheit der Immobilie und des Geländes.
Gerne erstellen wir Ihnen kostenlos und unverbindlich eine Wertschätzung Ihrer Immobilie.
Finanzierung:
Wir bieten Ihnen erstklassige Konditionen, kombiniert mit maximaler Flexibilität. Hypothekendarlehen mit einer Zinsfestschreibung von 5 bis 15 Jahren. Sondertilgungsmöglichkeiten von 5 bis 10 % jährlich.
Grundlage unserer Zusammenarbeit:
Für Gespräche, Verhandlungen, Besichtigungen, die Zusendung von Exposés entstehen Ihnen keine Kosten.
Die Nachweis- bzw. Vermittlungsprovision in Höhe von 5,95 % inkl. gesetzl. Mehrwertsteuer wird bei Kaufvertragsabschluss fällig und ist vom Käufer zu zahlen.
Sollten Sie die Verkäuflichkeit des Angebotes bzw. den Verkäufer sowie dessen Verkaufsabsicht kennen, können Sie sich auf diese Vorkenntnis gegenüber Haus-t-raum nur dann berufen, wenn Sie hierauf unverzüglich schriftlich hinweisen.
Die Weitergabe von Angebotsinformationen, die ausschließlich vom Verkäufer stammen und für deren inhaltliche Richtigkeit wir nicht haften, ist vertragswidrig und führt zum Schadenersatz. Zwischenverkauf ist nicht ausgeschlossen. Grundrisse, Fotos und Modelle dienen ausschließlich der Objektdarstellung ohne Gewähr für Zustand und Beschaffenheit der Immobilie und des Geländes.
Energieausweis
A+
< 30
A
30 - 50
B
50 - 75
C
75 - 100
D
100 - 130
E
130 - 160
F
160 - 200
G
200 - 250
H
> 250
- Baujahr lt. Energieausweis
- 1988
- Endenergieverbrauch
- 152 kWh/(m²a)
- Energieausweis
- Verbrauchsausweis
- Energieausweis gültig bis
- 03.03.2029
- Energieeffizienzklasse
- E
- wesentlicher Energieträger
- Gas
Ihr Ansprechpartner
Herr Dieter Gehrig
- Tel.:
- +49 163 2902291
- E-Mail:
- d.gehrig@haus-t-raum.de
Altkönigstraße 7
61462 Königstein im Taunus